718 TAILSLIDE Private, Huntley Ward (South East), Carp
Open House Feb 7th, 1-4PM

718 TAILSLIDE Private

Huntley Ward (South East), Carp

718 TAILSLIDE Private

Huntley Ward (South East), Carp

$629,900

Bedroom icon3
Bathroom icon3
Squarefootage icon1,500 sqft

About this Townhouse

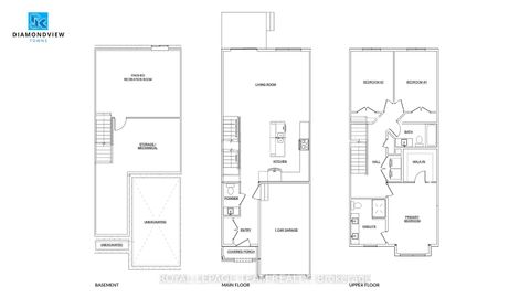
NEW MODEL HOME available for viewing! SEASONAL SPECIAL: $10,000 DESIGN CENTRE BONUS & SMOOTH CEILINGS Included for a limited time! Executive town radiating curb appeal & exquisite design, on an extra deep lot. Their high-end, standard features set them apart. Exterior: Genuine wood siding on front exterior w/ metal roof accent, wood inspired garage door, arched entryway, 10' x 8' deck off rear + eavesthroughing! Inside: Finished recroom incl. in price along w/ 9' ceilings & high-end textured vinyl floors on main, designer kitchen w/ huge centre island, extended height cabinetry, backsplash & quartz counters, pot lights & soft-close cabinetry throughout! The 2nd floor laundry adds convenience, while the large primary walk-in closet delights. Rare community amenities incl. walking trails, 1st class community center w/ sport courts (pickleball & basketball), playground, covered picnic area & washrooms! Lower property taxes & water bills make this locale even more appealing. Experience community, comfort & rural charm mere minutes from the quaint village of Carp & HWY for easy access to Ottawa's urban areas. Whether for yourself or as an investment, Sheldon Creek Homes in Diamondview Estates offers a truly exceptional opportunity! Don't miss out - Sheldon Creek Homes, the newest addition to Diamondview Estates! With 20 years of residential experience in Orangeville, ON, their presence in Carp marks an exciting new chapter of modern living in rural Ottawa. WOW - AMAZING VALUE! Act Now!

Listed by ROYAL LEPAGE TEAM REALTY.

MLS® Reciprocity Brought to you by your friendly REALTORS® through the MLS® System and TDREB (Tillsonburg District Real Estate Board), courtesy of Brixwork for your convenience.
The information contained on this site is based in whole or in part on information that is provided by members of The Canadian Real Estate Association, who are responsible for its accuracy. CREA reproduces and distributes this information as a service for its members and assumes no responsibility for its accuracy.
The trademarks REALTOR®, REALTORS® and the REALTOR® logo are controlled by The Canadian Real Estate Association (CREA) and identify real estate professionals who are members of CREA. The trademarks MLS®, Multiple Listing Service® and the associated logos are owned by CREA and identify the quality of services provided by real estate professionals who are members of CREA. Used under license.

Browse Photos

Features

  • MLS®: X12437872
  • Type: Townhouse
  • Building: 718 Tailslide Private Private, Carp
  • Bedrooms: 3
  • Bathrooms: 3
  • Square Feet: 1,500 sqft
  • Lot Size: 3,990 sqft
  • Frontage: 35.00 ft
  • Depth: 114.00 ft
  • Year Built: 2026

Neighbourhood Intelligence by HoodQ

Here is a brief summary of some amenities close to this listing (718 TAILSLIDE Private, Huntley Ward (South East), Carp), such as schools, parks & recreation centres and public transit.

This 3rd party neighbourhood widget is powered by HoodQ, and the accuracy is not guaranteed. Nearby amenities are subject to changes and closures. Buyer to verify all details.

Contact me now to see this property in person!

613.558.7253