66 Kayenta Street, Remainder of Stittsville & Area, Stittsville
Open House Mar 22nd, 2-4PM

66 Kayenta Street

Remainder of Stittsville & Area, Stittsville

66 Kayenta Street

Remainder of Stittsville & Area, Stittsville

$752,900

Bedroom icon1
Bathroom icon3
Squarefootage icon1,100 sqft

About this Townhouse

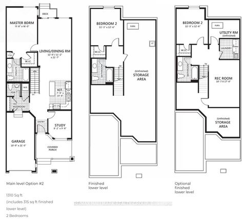
66 Kayenta Street - 1+1 Bedrooms + Den | 2.1 Bathrooms- An immaculate Tamarack Dove Freehold townhouse bungalow in Stittsville's highly sought-after Edenwylde adult lifestyle community. This rare model blends modern elegance with low-maintenance living, offering a bright, open layout and premium finishes throughout-and is energy certified for added efficiency and comfort. Step inside to 9-ft ceilings, rich hardwood floors, and a spacious open-concept design perfect for both entertaining and everyday living. The gourmet kitchen features beautiful granite countertops, while a versatile front den provides the ideal space for an office or hobby area. Large windows beside the back patio door fill the living room with natural light, and the patio doors lead directly to the private, fully fenced backyard, complete with maintenance-free rock landscaping for effortless outdoor enjoyment. The generous primary suite offers hardwood flooring, a walk-in closet, and a luxurious ensuite. The finished lower level includes a spacious recreation room, a second bedroom with walk-in closet, a full bathroom, a large laundry room, and plenty of additional storage. The garage includes inside access to a functional mudroom with powder room and optional main-floor laundry hookups. The charming front porch, upgraded with epoxy coating and enhanced with interlock pathway, adds excellent curb appeal. The garage floor also features a durable and stylish epoxy finish. Exceptionally well maintained, this home includes access to the community center and offers the comfort, convenience, and lifestyle benefits of adult-oriented living in an outstanding location. Common area fee: $300/year. A rare opportunity-experience refined bungalow living in one of Stittsville's finest communities!

Listed by RE/MAX HALLMARK REALTY GROUP.

MLS® Reciprocity Brought to you by your friendly REALTORS® through the MLS® System and TDREB (Tillsonburg District Real Estate Board), courtesy of Brixwork for your convenience.
The information contained on this site is based in whole or in part on information that is provided by members of The Canadian Real Estate Association, who are responsible for its accuracy. CREA reproduces and distributes this information as a service for its members and assumes no responsibility for its accuracy.
The trademarks REALTOR®, REALTORS® and the REALTOR® logo are controlled by The Canadian Real Estate Association (CREA) and identify real estate professionals who are members of CREA. The trademarks MLS®, Multiple Listing Service® and the associated logos are owned by CREA and identify the quality of services provided by real estate professionals who are members of CREA. Used under license.

Browse Photos

Features

  • MLS®: X12722472
  • Type: Townhouse
  • Building: 66 Kayenta Street, Stittsville
  • Bedrooms: 1
  • Bathrooms: 3
  • Square Feet: 1,100 sqft
  • Lot Size: 2,357 sqft
  • Frontage: 23.95 ft
  • Depth: 98.43 ft
  • Year Built: 2021

Neighbourhood Intelligence by HoodQ

Here is a brief summary of some amenities close to this listing (66 Kayenta Street, Remainder of Stittsville & Area, Stittsville), such as schools, parks & recreation centres and public transit.

This 3rd party neighbourhood widget is powered by HoodQ, and the accuracy is not guaranteed. Nearby amenities are subject to changes and closures. Buyer to verify all details.

Contact me now to see this property in person!

613.558.7253