1705 Belcourt Boulevard, Orleans/Sunridge, Orleans
Just Listed

1705 Belcourt Boulevard

Orleans/Sunridge, Orleans

1705 Belcourt Boulevard

Orleans/Sunridge, Orleans

$769,900

Bedroom icon3
Bathroom icon3
Squarefootage icon1,500 sqft

About this Detached

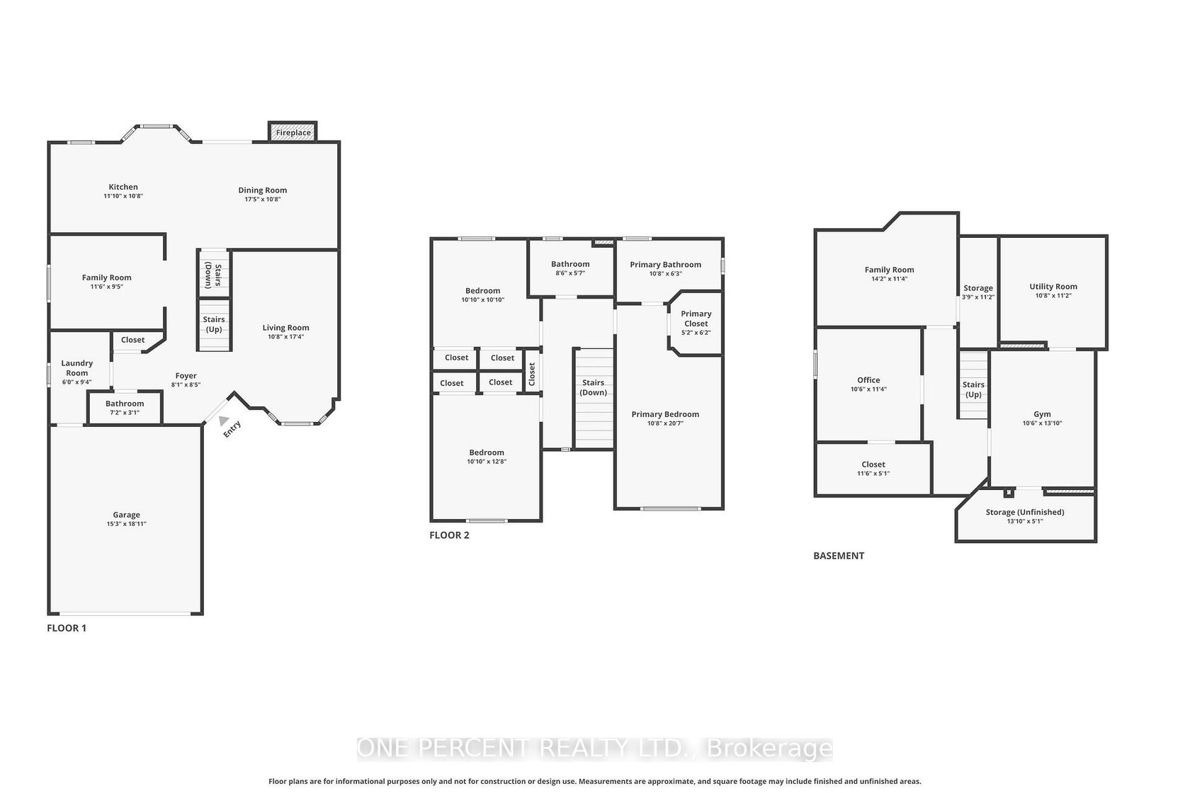
Welcome to this beautifully maintained detached two-storey home in the heart of Orleans - a true family gem with a backyard that must be seen to be believed. The massive fully fenced backyard is complete with a stunning deck, creating the perfect space for entertaining, relaxing, and making lasting family memories. The main floor offers an excellent layout designed for everyday living and entertaining. You'll find a bright living room, a comfortable family room, and an open-concept kitchen and dining area that flows seamlessly to the backyard. The main level also includes a convenient powder room, laundry room, and interior access to the double garage. Upstairs, the spacious primary bedroom features its own private ensuite bathroom and walk-in closet. Two additional well-sized bedrooms and a full bathroom complete the second floor. The fully finished basement adds incredible versatility, offering a dedicated home gym, a private office, and a second family room that could be used as an additional bedroom. This home is truly move-in ready with major updates already completed, including roof (2023), furnace (2023), and central air conditioning (2023). Windows are also in great condition, providing peace of mind for years to come. The property also features a double garage and driveway parking for up to six vehicles, making it ideal for families and visitors alike. Located in a fantastic family-friendly neighbourhood, you're just a three minute walk to Marcel Beriault Park, with excellent English and French schools nearby, along with grocery stores, public transit, and everyday amenities. A rare opportunity to own a move-in ready home with exceptional outdoor space in one of Orleans' most desirable communities. Don't forget to checkout the 3D TOUR and FLOOR PLAN. Call your Realtor to book a showing today!

Listed by ONE PERCENT REALTY LTD..

MLS® Reciprocity Brought to you by your friendly REALTORS® through the MLS® System and TDREB (Tillsonburg District Real Estate Board), courtesy of Brixwork for your convenience.
The information contained on this site is based in whole or in part on information that is provided by members of The Canadian Real Estate Association, who are responsible for its accuracy. CREA reproduces and distributes this information as a service for its members and assumes no responsibility for its accuracy.
The trademarks REALTOR®, REALTORS® and the REALTOR® logo are controlled by The Canadian Real Estate Association (CREA) and identify real estate professionals who are members of CREA. The trademarks MLS®, Multiple Listing Service® and the associated logos are owned by CREA and identify the quality of services provided by real estate professionals who are members of CREA. Used under license.

Browse Photos

Features

  • MLS®: X12899534
  • Type: Detached
  • Bedrooms: 3
  • Bathrooms: 3
  • Square Feet: 1,500 sqft
  • Lot Size: 5,634 sqft
  • Frontage: 37.48 ft
  • Depth: 150.33 ft

Neighbourhood Intelligence by HoodQ

Here is a brief summary of some amenities close to this listing (1705 Belcourt Boulevard, Orleans/Sunridge, Orleans), such as schools, parks & recreation centres and public transit.

This 3rd party neighbourhood widget is powered by HoodQ, and the accuracy is not guaranteed. Nearby amenities are subject to changes and closures. Buyer to verify all details.

Contact me now to see this property in person!

613.558.7253